Verkocht

Woonboerderij te koop in Friesland - Midlansdyk 6, Goenga

Woonboerderij in Friesland
Vraagprijs: € 589000

Woonboerderij in Friesland!

Woonboerderij – Midlânsdyk 6 – 8628 ES Goënga

Namens opdrachtgever wordt deze unieke stelpboerderij te Goënga te koop aangeboden. Voorheen bestemd als melkveehouderij. Bestaande uit een stelpboerderij met jongveestal, een ruime ligboxenstal, silo’s, sleufsilo’s, erfverharding en landerijen. De grootte van de ondergrond
woonboerderij en de landerijen is totaal circa 12.945m2. Goënga ligt net buiten Sneek en
Scharnegoutum. De binnenstad van Sneek is met de fiets in circa 15 minuten te bereiken vanaf de woonboerderij.

Stelpboerderij “Sjaerdemahof”
De goed onderhouden stelpboerderij is in 1924 gebouwd. In de loop der jaren hebben diverse
renovaties plaatsgevonden naar de huidige eisen qua wonen. Het geheel is traditioneel opgebouwd uit steen met houten binten en staat op poeren op kleigrond. Het dak van het woongedeelte is een met hout beschoten kap gedekt met pannen. Het dak van het schuurgedeelte is riet onderschoten. In 2005 zijn nieuwe pannen gelegd op het woongedeelte. Aan de voorzijde van de boerderij is het woongedeelte welke wordt gekenmerkt door de dakkapel. De achterzijde van de boerderij wordt gebruikt als jongveestal.
De vloer is in het woongedeelte is gedeeltelijk van beton en van hout. De tussenvloer van de
verdieping is van hout. De plafonds van het woongedeelte zijn van board. De gehele woning is
voorzien van dubbelglas en hardhouten kozijnen. De goten zijn voorzien van zinkwerk. In 2017 zijn de houten goten aan de voorzijde van de woonboerderij vervangen, tevens is het zinkwerk in de goten gerepareerd. In 2018 is het woongedeelte buitenom geschilderd door een schildersbedrijf. Verbonden aan het woongedeelte is een terras gelegen op het Zuidwesten van de woonboerderij.

De totale inhoud van het woongedeelte is circa 532m3. De begane grond heeft een oppervlakte van circa 137m2. De begane grond is ingericht met een keuken, eetkamer, woonkamer, slaapkamer, hal,
toilet, badkamer, kelder en bijkeuken. De bovenverdieping heeft een oppervlakte van circa 73m2 en geeft ruimte aan vijf slaapkamers. Het woongedeelte wordt verwarmd middels centrale verwarming.

Indeling woongedeelte:
Begane grond (137m2)
Eetkamer: De eetkamer van circa 22m2 is de centrale ruimte in het leefgedeelte. De
ruimte heeft een houten ondervloer. De kozijnen zijn van hout en voorzien
van dubbelglas en bieden zicht aan het omringende grasland. De plafonds zijn
van gips. Vanuit de eetkamer is de keuken of de verbonden woonkamer te
bereiken welke allen worden verwarmd door radiatoren
Woonkamer: Vanuit de eetkamer is middels een opstap de woonkamer te betreden. Door
de authentieke bouw van de boerderij bevindt de woonkamer, ook wel
opkamer genoemd, zich rechtstreeks boven de kelder. Door de betonnen
vloer ligt de ruimte hoger dan de overige ruimtes. Er is een inbouwkast
aanwezig in de ruimte, door de grootte raampartijen voelt de ruimte licht
aan. De kozijnen zijn van hout en voorzien van dubbelglas.
Keuken: Keuken met houtlook is geplaatst in een u-opstelling. Voorzien van alle
gemakken zoals een oven, vaatwasser, elektrische kookplaat en een dubbele
wasbak. De keuken heeft vrij zicht naar buiten.
Hal: Vanuit de authentieke hal van circa 15 meter lang zijn alle kamers op de
begane grond te bereiken. Via de vaste trap is de verdieping toegankelijk.
Ook is de meterkast met 16 groepen en slimme meter in deze ruimte
geplaatst.
Kelder: In de woning is een ruime kelderruimte(droog) aanwezig met een sta hoogte
van circa 1,75m. De vloer, muren en plafond zijn van beton. Twee kiepramen
zorgen voor lichtinval en ventilatie in de ruimte. De kelder wordt gebruikt als
voorraad kamer en is toegankelijk via de hal.
Toilet: De toiletruimte is betegeld en heeft een zwevend toilet met fontein. Het
toilet is toegankelijk vanuit de hal. De ruimte wordt verwarmd met
vloerverwarming.
Badkamer: Verbonden aan de hal is een badkamer van circa 7m2 aanwezig. Deze is
voorzien van een inloop douche en een wastafel. De ondervloer is van beton.
De ruimte wordt verwarmd via vloerverwarming. Ook geeft deze ruimte
aansluitmogelijkheden voor een wasmachine.
Slaapkamer: Op de begane grond is een ruime slaapkamer van circa 17m2. In de
slaapkamer is een schouw en vaste kasten aanwezig. De slaapkamer geeft
uitzicht over de tuin. De ondervloer is van hout en bekleed met tapijt.
Bijkeuken: Aan het einde van de gang is de bijkeuken gesitueerd van circa 31m2. De
ondervloer is van beton. De bijkeuken geeft toegang tot de schuurruimte,
door de openslaande deuren is het terras te bereiken.

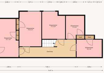
Bovenverdieping (73m2)
Overloop: De verdieping is bereikbaar via een vaste trap vanuit de hal. De ruime
overloop geeft toegang tot 5 slaapkamers.
Slaapkamers: De slaapkamers hebben een oppervlakte van circa 7m2, 8m2, 11m2, 13m2 en
15m2. De slaapkamers zijn deels ingericht met gipsen plafonds. Tweetal
kamers hebben een dakkapel, de overige drie kamer hebben Velux
dakramen. De verdieping wordt verwarmd door centrale verwarming.
Hooizolder: Grenzend aan de verste slaapkamer is de hooizolder.

Schuurruimte/ Jongveestal
Verbonden aan het woongedeelte is de schuurruimte. Ook deze dateert uit 1924. De ruimte fungeert nu als ruimte voor het jongvee (tot 1,5 jaar), als afkalfstal, er is een werkplaats en een kantoorruimte aanwezig. Op de verdieping is de ruime hooizolder. Het jongvee is verdeeld over 18 boxen en 20 plekken op stro. De oppervlakte is circa 461m2 (21m x 24m). De vloer is van beton. De nokhoogte zit op 13 meter. De bouw is traditioneel met houten bintwerk en stenen muren. Status hiervan is goed.
Het dak is met pannen gedekt en met riet onderschoten. De hoge staldeuren van circa 4 meter hoog zijn in redelijke staat. Op de nok van het dak aan de achterzijde is een uilenbord geplaatst. Aan de schuurruimte is het tanklokaal gebouwd van circa 14m2.

Ligboxenstal
De ligboxenstal is toegankelijk vanuit de schuurruimte, of via de staldeur van 3,74 meter hoog en 3,81 meter breed. De ligboxstal is in 1984 gebouwd en is in 2006 verlengd met een aanbouw. Totaal ruimte voor circa 120 grootvee eenheden. Gefundeerd op staal, deels hout gelijmde en deels stalen spanten. Opgetrokken in steen en damwandprofiel plaat. Het oude dak gedeelte is bedekt met asbest golfplaten. Het dak van het nieuwe gedeelte heeft asbestvrije golfplaten. De oppervlakte van de stal is circa 1.050m2 (21 x 50 meter).
De ligboxstal is onderkelderd, de mestputten hebben een totale mestopslag van circa 1.100m3. De mestputten zijn opgebouwd uit deels betonblokken en deels gestort beton.

Silo’s
Verspreid op het erf staan in totaal 4 silo’s. 2 van de silo’s zullen worden meegenomen door
verkoper. De 2 overige silo’s zullen bij de boerderij blijven. De silo’s zijn gebruikt voor het opslaan van voer en kunstmest. De silo’s zijn bevestigd op beton en zijn niet onderheid.

Sleufsilo
Op het perceel zijn 4 sleufsilo’s. De 2 grootste sleufsilo’s hebben een afmeting van 32m x 10m,
daarnaast is nog een andere sleufsilo aanwezig met een afmeting van 32m x 7m. De wanden zijn van betonelementen. De vloer is deels van betonen elementen. Naast de 3 grote sleufsilo’s is er nog een kleinere silo’s van circa 5m x 5m.

Mestlagune
Achter de 3 grote sleufsilo’s bevindt zich de mestlagune, deze heeft een inhoud van circa 700m3.
Een mestlagune is een bassin welke is bekleed met folie. Het bassin wordt bekleed met een bovenen onderkleed, hiertussen wordt het mest in opgeslagen.

Landerijen
Inclusief ondergrond gebouwen en het woonperceel zijn de landerijen in eigendom circa 12.945m2.
Al het land is verbonden aan de huiskavel.

Specificatie
- De ontsluiting van het huisperceel is via het eigen toegangsweg en via het erf.
- De grondsoort is klei.
- De hoofdafwatering en detailafwatering zijn goed.
- Het land wordt thans gebruik als grasland.

Kadastrale aanduiding
Kadastrale gemeente Sectie Nummer m2 Bijzonderheden
1 Scharnegoutum F 378 729m2
2 Scharnegoutum F 385 6.191m2
3 Scharnegoutum F 486 1.015m2
4 Scharnegoutum F X 5.000m2 Nader in te meten
Totaal 12.945m2

* De woonboerderij wordt aangeboden inclusief 5.000m2 grasland, welke kadastraal nog is vast te
stellen. Mocht de koper minder meters wensen dan is dit optioneel, dit zal worden verrekend tegen
het tarief van €6,- per m2.

Overige informatie
Bestemmingsplan
Enkelbestemming agrarisch. De boerderij is geen monument en is niet beschermd dorps- of
stadsgezicht.

Roerende zaken
Voor het woongedeelte en zakelijke deel is een lijst van zaken aanwezig. Roerende zaken zijn in overleg.
Prijstype;
Kosten koper
Aanvaarding
Per 1 januari 2022

Extra informatie
Voorraden: Huidige voorraden worden opgeruimd (ruwvoer, krachtvoer,
kunstmest), mestvoorraad blijft tot uiterlijk 15 mei 2022
Bodemverontreiniging: Verontreiniging is niet bekend
Ondergrondse tank(s): Geen
Betalingsrechten (incl.): Geen
Melktank: Zal worden verwijderd
Mestopslag kelder: Circa 1.100m3 onder de ligboxstal
Mestlagune: Inhoud van circa 700m3
Voersilo’s: 12 ton. Geplaatst op beton
Kunstmestsilo’s: 10 ton. Geplaatst op beton
Sleufsilo: Sleufsilo 32 x 7 meter van beton
2x sleufsilo 32 x 10 meter van beton
Sleufsilo 5 x 5 meter van beton
Energielabel woning: Voorlopig Energielabel G
Cv-Ketel: CV Bosch HR Ketel 2018 (Eigendom)
Boilers: 2 boilers van 120 liter op gas (Eigendom)
Televisie/ internet: Schotel, glasvezel
Krachtstroom: Krachtstroom aanwezig in de ligboxenstal en schuurruimte
Riolering: Overloop naar beerput
Gemaal: Achter de ligboxstal bevindt zich een gemaal (Eigendom)
Asbest: Aanwezig op oude gedeelte ligboxstal
Erfverharding: Deels gestort beton en betonplaten
Bereikbaarheid: Het erf en de percelen zijn goed bereikbaar vanaf de openbare weg
Erfdienstbaarheden: Rustende erfdienstbaarheden komen te vervallen

BTW: Een BTW voorbehoud wordt opgenomen voor BTW-plichtige zaken
verbonden aan de verkoop

Aanbieding: De vraagprijs is exclusief fosfaatrechten, nb-vergunning, overname
hiervan is bespreekbaar. Deze aanbieding geeft geen recht van eerste
koop of andere verplichtingen anders dan afgesproken wordt met
verkopers.

Bijzonderheden
Kadastraal inmeten: Kosten voor het kadastraal inmeten zijn voor de koper. Koper
verzorgt voor een deugdelijke erfafscheiding van de nieuwe erfgrens.
Melkapparatuur: Exclusief melkwinningsapparatuur.
Mestput: Koper aanvaard dat verkoper de mestput tot uiterlijk 15 mei 2022 in
gebruik heeft. Verkoper zal in de periode na verkoop de aanwezige
mest in 2 dagen mixen en uitrijden. Verkoper levert, op
eerdergenoemde datum, de mestput zuig-leeg op. Koper aanvaard
dat verkoper deze activiteiten uitvoert op het erf.

Dammen: De bestaande dammen blijven, tenzij koper en eigenaar (OBW) hier
andere afspraken overeenkomen.

Waterpeilen/gemaal: Het waterpeil rondom het erf zijn in eigenbeheer. Een gemaal achter
de ligboxstal (eigendom) houdt het water op peil door overtollig
water van het grasland af te voeren.

Silo’s: Op de foto’s zijn 4 silo’s te zien. 2 hiervan zullen worden
meegenomen door verkoper, de 2 overige zullen blijven staan.

Uitnodiging
Alle verstrekte informatie moet uitsluitend gezien worden als een uitnodiging tot nader overleg c.q. tot het doen van een financieel voorstel. Verkoper stelt uitdrukkelijk dat een verkoop niet eerder tot stand komt dan nadat niet alleen over de hoofdzaken (prijs, object) maar ook over de details (zoals oplevering, roerende zaken enz.) overeenstemming is bereikt. Wij attenderen u erop dat het bieden van de vraagprijs niet automatisch inhoudt dat er ook een koopovereenkomst tot stand is gekomen.

Voorbehoud/ onderzoeksplicht
Indien koper een of meer voorbehouden wenst, dient hij dat bij de onderhandelingen in te brengen.

Voorbehouden ingebracht nadat een overeenkomst tot stand is gekomen, worden niet geaccepteerd tenzij verkoper met dergelijke toevoegingen alsnog instemt. Koper heeft een eigen onderzoeksplicht ter zake alle onderwerpen die voor hem van belang (kunnen) zijn. Dat geldt zeker ook ter zake bestemmingen, bestemmingsplannen, bouwverordening e.d. raadpleeg uw eigen makelaar!

Kenmerken


Overdracht
Prijscode Hogere prijsklasse
Vraagprijs € 589.000,00
Prijstype k.k.
Status Verkocht

Woning
Soort woonhuis Woonboerderij