Woonboerderij te koop in Noord-Brabant - Lactariaweg 30, Stevensbeek
Woonboerderij in Noord-Brabant!
Woonboerderij met mogelijkheden in het buitengebied van Stevensbeek!
Bent u op zoek naar een rustige en ruime woonlocatie met diverse gebruiksmogelijkheden?
In het buitengebied van Stevensbeek vindt u deze langgevelboerderij uit 1935, gelegen op een royaal perceel van maar liefst 11.906 m². Het geheel biedt diverse mogelijkheden, waaronder een kampeerterrein, diverse verblijfsruimtes, een garage, een royale paardenstal/schuur, een paardenrijbak, weiland en een prachtige tuin, met alle benodigde faciliteiten en vergunningen om deze functies te realiseren. De woning is de afgelopen jaren gemoderniseerd en verduurzaamd, waardoor het comfort en de efficiëntie zijn verhoogd.
De woonboerderij is landelijk en vrij gelegen, maar toch dichtbij voorzieningen. De dorpen Sint Anthonis en Overloon, met winkels en andere faciliteiten, liggen op slechts 5,5 kilometer afstand. De woning heeft een agrarische bestemming met de functieaanduiding plattelandswoning, waardoor bewoning hier volledig is toegestaan.
Indeling van de woning
Begane grond
Via de voordeur komt u binnen in de royale woonkamer met open keuken. De gehele ruimte is voorzien van een tegelvloer met vloerverwarming, een airco, een sfeervolle houtkachel (aangesloten op CV) en een schuifpui naar het overdekte terras. De luxe, vernieuwde keuken (2022) is uitgerust met een BORA- inductiekookplaat met afzuiging, vaatwasser (Miele), Quooker, combi-stoomoven (Miele) en een grote koelkast (Miele). Het kookeiland en de brede kastenwand maken het geheel extra functioneel.
Vanuit de woonkamer komt u in een tussenruimte, die momenteel als extra woonruimte wordt gebruikt. Deze ruimte is door de aanwezigheid van een keukenblok, aansluitingen voor witgoed, een airco en een schuifpui naar de voorzijde van de woning bij uitstek geschikt als kantoor, praktijkruimte of extra woonruimte.
Verderop bevindt zich de slaapkamer, die direct toegang biedt tot een badkamer en een separaat toilet. De badkamer is voorzien van een wastafel, douche en toilet. Vanuit de slaapkamer heeft u ook toegang tot de buitenruimte.
De woning beschikt verder over twee comfortabele gastenkamers, met een eigen slaapkamer, badkamer en woonkamer, ideaal voor verhuur of voor logees.
Het achterhuis van de woning fungeert deels als garage, deels als opslagruimte en deels als sanitaire ruimte. De garage is uitgerust met een elektrische roldeur voor een gemakkelijke toegang.
Eerste verdieping
Via een vaste trap in het achterhuis bereikt u de zolderverdieping, die zich uitstrekt naar een separate ruimte boven de woonkamer en keuken. Deze ruimte biedt volop mogelijkheden en kan eenvoudig worden omgevormd tot meerdere slaapkamers. Ook is het mogelijk om hier een extra badkamer te realiseren. Momenteel is het één open ruimte.
Rondom de woning
De woning wordt omgeven door een volledig omheind perceel, deels met elektrisch bedienbaar hekwerk. Het terrein is gedeeltelijk verhard en beschikt over een weiland en een tuin met uitzicht op de omliggende weilanden, waar de privacy gegarandeerd is.
Aan- en bijgebouwen
Op het terrein bevinden zich meerdere aan- en bijgebouwen die bijdragen aan de veelzijdigheid van dit object:
1. Achterhuis
• Afmetingen: ongeveer 13 x 20 meter
• Voorzien van een elektrische roldeur
• Deels uitgevoerd met roostervloer
2. Sanitaire voorzieningen
• Meerderde toiletten, douches en wastafels aanwezig
3. Schuur / paardenstal
• Afmetingen: ongeveer 45 x 19 meter
• Traditioneel gemetseld met stalen spanten
• Geïsoleerde dakplaten met lichtstraat
• 6 ruime paardenboxen (afmetingen: 3,60 x 5,15 meter)
• Wasplaats voorzien van warm en koud water
• Schuifdeuren aan de achterzijde
• Elektrische garagedeur aan de linkerzijkant
• Binnenbak (afmetingen: 8,5 x 20 meter)
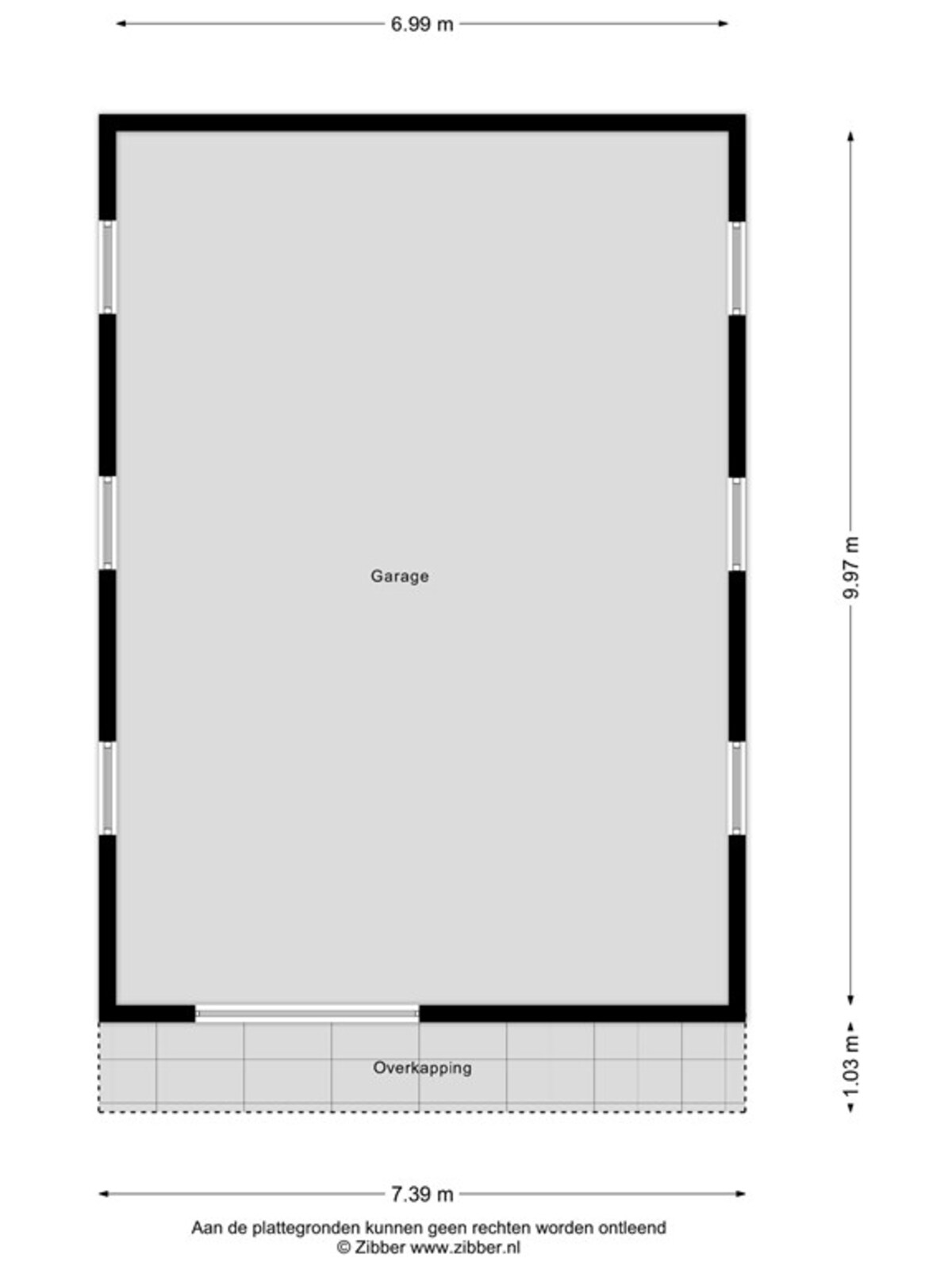
4. Garage
• Afmetingen: ongeveer 10 x 7 meter
• Gemetselde onderzijde en een gepotdekselde bovenkant
• Geïsoleerde dakplaten
• Elektrische deur
5. Rijbak
• Afmetingen: ongeveer 16 x 43 meter
6. Tuinhuis
• Afmetingen: 3 x 3 meter
• Geschikt als eenvoudige verblijfsruimte, hobbyruimte of opslagruimte
Bestemming en mogelijkheden
De woonboerderij valt onder het "Buitengebied Sint Anthonis 2013" (vastgesteld op 04-02-2015) met een bestemming Agrarisch – Grondgebonden en functieaanduiding – specifieke vorm van wonen-2, wat inhoudt dat dit een plattelandswoning is.
Binnen deze bestemming zijn verschillende gebruiksmogelijkheden bespreekbaar, waaronder:
• Kantoor aan huis
• Agrarisch aanverwant beroep
• Hobbymatig paardenhouderij
• Mantelzorg
• Wonen met een groot gezin
• Bed & Breakfast (vergunning aanwezig)
• Kleinschalig kamperen (vergunning aanwezig)
Wij adviseren u om voor specifieke plannen het Omgevingsloket of de gemeente te raadplegen.
Kenmerken op een rij
• Gelegen in het buitengebied van Stevensbeek
• Perceel van 11.906 m²
• CV (2018)
• Airco’s (2021)
• Glasvezel aanwezig
• Grotendeels kunststof kozijnen
• Energielabel D
• Vernieuwde meterkast
• 30 zonnepanelen (2020)
• ‘As is, where is’ - clausule wordt opgenomen
Ligging
Stevensbeek is gelegen nabij het natuurgebied 'De Radioplassen'. De plassen zijn omgeven door mooie bosgebieden, wandelpaden en strandjes. Daarnaast is Stevensbeek een actieve leefgemeenschap met diverse verenigingen en voorzieningen op het gebied van sport- en vrije tijd. Het dorp beschikt over busvervoer en een basisschool.
Stevensbeek ligt op circa 10 minuten van de snelwegen A73 / A77 en binnen een half uur rijd je naar Nijmegen, Venlo of Venray, waar goede voorzieningen zijn. Binnen 3 tot 6 kilometer zijn diverse winkelcentra aanwezig (o.a. Sint Anthonis, Overloon, Boxmeer). Het NS-station van Boxmeer of Vierlingsbeek is bereikbaar binnen 10 autominuten en 25 fietsminuten.
Maak een afspraak
Bent u benieuwd naar de mogelijkheden die deze woonboerderij u kan bieden? Neem dan gerust contact met ons op voor een vrijblijvende bezichtiging. Deze locatie moet u met eigen ogen zien om de ruimte en potentie écht te ervaren.
Deze informatie is door ons met de nodige zorgvuldigheid samengesteld. Onzerzijds wordt echter geen enkele aansprakelijkheid aanvaard voor enige onvolledigheid, onjuistheid of anderszins, dan wel de gevolgen daarvan. Koper heeft een onderzoeksplicht.
Kenmerken
|
Overdracht
|
|
| Prijscode | Vraagprijs |
| Vraagprijs | € 1.095.000,00 |
| Prijstype | k.k. |
| Datum opdracht | 2026-04-02 |
| Aanvaarding | In overleg |
| Status | Beschikbaar |
|
Oppervlaktes en inhoud
|
|
| Gebruiksoppervlak wonen | 320 |
| Bruto inhoud m3 | 5600 |
| Oppervlakte externe bergruimten | 78 |
| Oppervlakte overige inp. ruimten | 1200 |
| Oppervlakte gebouwgeb. buitenr. | 19 |
| Perceel oppervlakte | 11906 |
|
Bouw
|
|
| Type dak | Zadeldak |
| Dakbedekking | Pannen |
|
Indeling
|
|
| Aantal kamers | 8 |
| Aantal slaapkamers | 4 |
|
Locatie
|
|
| Ligging |
Buiten bebouwde kom In bosrijke omgeving |
|
Energie verbruik
|
|
| Energie klasse | D |
|
Woning
|
|
| Type woonhuis | Vrijstaand |
| Soort woonhuis | Woonboerderij |
| Bouwjaar | 1935 |