Verkocht

Woonboerderij te koop in Noord-Holland - Hoofdweg 511, Hoofddorp

Woonboerderij in Noord-Holland
Prijs op aanvraag
196999 m² perceel
308 m² wonen
4 kamers

Woonboerderij in Noord-Holland!

Agriteam Makelaars Noord Holland biedt namens de eigenaren dit complete akkerbouwbedrijf aan op een prachtige locatie in de Haarlemmermeer. Zowel de woning als de opstallen zijn in zeer goede staat. Objecten in zo’n goede staat kom je zelden tegen en zeker niet op zo’n geweldige locatie! Het bedrijf bestaat uit een riant woonhuis, complete paardenstal met tien paardenboxen en zadelkamer met toilet. Een ruime akkerbouwloods die tevens geschikt gemaakt kan worden als rijhal. De loods heeft aan voorzijde een ruime werkplaats met sanitair en entresol en aan de achterzijde een kantoor en kantine met volledige sanitaire voorzieningen. De woning en opstallen bevinden zich op circa 01.30.00 ha erf. Achter de gebouwen liggen twee percelen landbouwgrond. De totale oppervlakte is 19.69.99 ha. Een prachtig bedrijf klaar voor de toekomst met unieke mogelijkheden tot het starten van een stoeterij of ander landbouwbedrijf.



Interesse? Vraag de brochure aan via ons kantoor!



Woonhuis

Deze riante woning is in 2012 gebouwd. De gevels zijn van steen met spouw, schilddak met pannen gedekt. De vloer is van beton. De indeling is als volgt: begane grond: entree, trapopgang, kantoor, wasruimte, cv-ruimte, woonkamer, woonkeuken met ingebouwde oven, magnetron, koelkast, vriezer en vaatwasser. In de woonkeuken bevindt zich een erker, vanuit waar je een prachtig uitzicht hebt over het landschap achter de woning. Verder is er op de begane grond een ouderslaapkamer met een eigen badkamer met inloop douche en ligbad, een grote bijkeuken met wc en achterdeur naar de inpandige garage met roldeur.

De begane grond wordt centraal verwarmd door een cv-ketel uit 2012 en is voorzien van vloerverwarming.

De woonoppervlakte is 308 m² ( BAG ). In 2022 is de woning voorzien van glasvezel. De woning is voor riolering aangesloten op een eigen septictank.

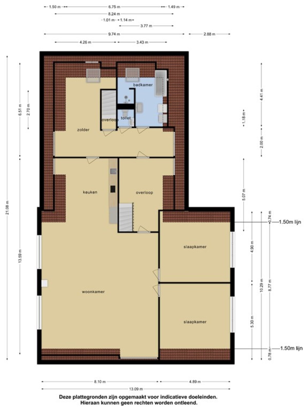
De riante verdieping is als volgt ingericht: overloop, twee riante slaapkamers en grote badkamer met inloopdouche, ligbad en tevens voorzien van vloerverwarming, zitkamer met 2 Franse balkons en open woonkeuken met ingebouwde combi magnetron, koelkast en vaatwasser. De ruime zolder, is bereikbaar door middel van een vlizotrap in één van de twee slaapkamers. De zoldervloer is geïsoleerd. Ideaal als gastenverblijf of voor inwonend personeel.

De verdieping wordt tevens verwarmd door een eigen cv-ketel uit 2012.



Paardenstal

De paardenstal is in 2012 gebouwd. De gevels zijn van steen met spouw, zadeldak met dakpannen. De stal is voorzien van twee overheaddeuren van 3,3 m bij 3,6 m en 2 loopdeuren. Daarnaast bevindt zich aan de zijgevel erfzijde ook nog 1 loopdeur bij de wasplaats. De gevels zijn voorzien van stalen stalramen met daarvoor raambescherming voor de paarden. De vloer is van beton. De stal is 12,60 meter breed met een lengte van 25,60 meter. De totale oppervlakte is ongeveer 323 m². De inrichting van de paardenstal is als volgt: er bevinden zich 10 ruime paardenboxen.

Tussen de boxen zitten verschuifbare muren zodat de stal gemakkelijk en snel uitgemest kan worden. De stal heeft tevens een aparte ruimte die geschikt is voor voeropslag en zadelkamer. In deze ruimte is een sanitaire voorziening aanwezig. Naast deze ruimte is een spoelplaats aanwezig. Daarnaast bevindt zich in de stal de waterpomp voor de beregening van de paardenbak.



Akkerbouwloods

De loods is in 2012 gebouwd. De gevels zijn van steen met spouw en de topgevels zijn van damwandprofielplaten, zadeldak met sandwichpanelen gedekt. De loods is opgedeeld in 4 ruimtes, werkplaats, akkerbouwloods, opslagruimte, kantoor en kantine. De totale oppervlakte van de loods bedraagt ongeveer 2.438 m². De loods is tevens in 2021 SCIOS Scope 10 gekeurd.

De loods is als volgt ingericht:

Het voorste gedeelte van de loods is ingericht als werkplaats/garage van 5,82 meter breed met een lengte van 30,34 meter. De totale oppervlakte van de werkplaats is ongeveer 177 m².

De werkplaats is voorzien van 2 grote schuifdeuren die leiden naar de overige ruimte in de loods en sanitaire voorziening. Er zijn voorzieningen getroffen voor de aanleg van vloerverwarming.

Het grootste gedeelte van de loods is ingericht als akkerbouwloods. Dit gedeelte heeft een lente van 66,95 meter met een breedte van 30,34 meter. De totale oppervlakte is ongeveer 2.031 m². Er bevinden zich 2 elektrische overheaddeuren van 5,74 meter bij 5 meter en 2 loopdeuren. Er ligt geen vaste vloer in dit gedeelte van de loods. Dit is gedaan voor de mogelijke bouw van een rijhal in de loods in de toekomst. Boven de werkplaats bevindt zich een verdieping, die te bereiken is met een vaste trap, die ingericht kan worden als kantine en juryplek voor mogelijke paardrijwedstrijden. De volgende ruimte is ingericht als opslagruimte. Deze is afgesloten met een tijdelijke wand en heeft een lengte van 30,40 meter met een breedte van 30,34 meter. De totale oppervlakte van dit gedeelte is ongeveer 922 m². De opslagruimte is voorzien van een overheaddeur van 5,74 meter bij 5 meter.

Het achterste gedeelte van de akkerbouwloods is ingericht als kantoor en kantine met volledige sanitaire voorzieningen.

Zowel het kantoor als de kantine hebben een breedte van 6,175 meter en een lengte van 15,17 meter. De totale oppervlakte van de ruimtes afzonderlijk is ongeveer 94 m². Zowel het kantoor als de kantine zijn voorzien van vloerverwarming.



Erfverhardingen

Het erf is ruim voorzien van klinkerverhardingen rondom de gebouwen met een oppervlakte van circa 6.000 m².



Diversen

• Een rijbak aanwezig van 20 meter bij 60 meter met eigen sproei installatie vanuit de paardenstal.

• Geautomatiseerd afsluitbaar hek, op afstand te openen via de mobiele telefoon.

• Huisweiden zijn afgescheiden door degelijk hekwerk voorzien van schrikdraad.

• Propaangas tank aan voorzijde van het erf.

• Mestplaat van 6 meter bij 8 meter van betonplaten en betonnen wanden.



Ligging

Het object is gelegen aan een landelijke weg onder de rook van Schiphol. De directe buren zijn een paardenhouderij en een detailhandel. In de omgeving zijn diverse akkerbouwbedrijven gevestigd. Aan de Hoofdweg zijn een paardenhouderij, kledingwinkel, akkerbouwbedrijven en een begraafplaats gevestigd. Het bedrijf ligt op twee kilometer afstand van de stad Hoofddorp en op 10 kilometer van Schiphol. Voor de dagelijkse boodschappen is een winkelcentrum in Hoofddorp en Haarlem ligt op circa 15 kilometer afstand. De schoolvoorzieningen zijn voor wat betreft basisschool in Hoofddorp en het voortgezet onderwijs is te vinden in Hoofddorp, Haarlem en Amsterdam. Tevens ligt de Polderbaan van Schiphol op korte afstand. Verrassend genoeg is de overlast van deze baan zeer gering door de ligging en situering.



Kadastrale gegevens

Haarlemmermeer AC 330 00.40.29 ha

Haarlemmermeer AC 1787 04.80.00 ha

Haarlemmermeer AC 1809 14.49.70 ha



Bereikbaarheid

Het object is gelegen aan de Hoofdweg te Hoofddorp.

De afstanden tot de steden zijn als volgt:

Schiphol 10 km (circa 12 min.)

Amsterdam 15 km (circa 16 min.)

Haarlem 16 km (circa 20 min.)

Den Haag 46 km (circa 43 min.)

Parijs 512 km (circa 6 uur)



Lasten

De lasten op de objecten en percelen zijn de waterschapslasten en gemeentelijke belastingen.

Deze bedragen voor 2022 als volgt:



Onroerende Zaak Belasting OZB             € 4.260 2022

Waterschapslasten/Hoogheemraadschap € 1.897 2022

Gas/water/elektra                                 € 608 per maand in 2022



Zakelijke rechten

In het eigendomsbewijs staan geen zakelijke rechten of verplichtingen vermeld.



Kavels en grondsoorten

Het erf heeft een oppervlakte van ongeveer 1.30.00 ha. Naast het erf twee huisweides van 2.000 m² en 6.700 m². Achter de gebouwen liggen twee kavels land met een uitrit over het erf met een grootte van circa 17.52.99 ha. De totale huiskavel inclusief erf en ondergrond gebouwen is groot: 19.69.99 ha. De grondsoort van de percelen grond in Hoofddorp wordt aangeduid als volgt:

Kalkrijke poldervaaggronden; lichte zavel, profielverloop 2.

De grond is afgelopen jaren gebruikt voor traditionele akkerbouw producten als tarwe, uien, bieten, gerst en aardappelen.

In november 2020 zijn de percelen gedraineerd.



Bestemmingsplan

Het vigerende bestemmingplan is Buitengebied Noord, vastgesteld 4 juli 2013 waarin de volgende bestemmingen gelden:

• Enkelbestemming Agrarisch

• Aanduiding Bouwvlak

• Bouwaanduiding: Specifieke bouwaanduiding - lib

• Gebiedsaanduiding: Geluidszone - industrie

• Gebiedsaanduiding: Luchtvaartverkeerszone - lib

De voorschriften zijn als bijlage toegevoegd in de op te vragen brochure.



Provinciale verordening

De Omgevingsverordening NH 2020 van 1 januari 2023 geeft aan voor deze locatie:

• Grondgebied provincie Noord-Holland

• Agrarische bedrijven

• Bijzonder Provinciaal Landschap

• Bodemsanering

• Datacenters clustering toegestaan

• Landelijk gebied

• MRA

• LIB 5 zone Schiphol

• Ontgrondingen

• Peilbesluit

• Grondbewerkingen voor permanente bollenteelt uitgesloten

Kenmerken


Overdracht
Prijscode Prijs op aanvraag
Prijstype k.k.
Datum opdracht 2025-12-22
Aanvaarding Per datum
Status Verkocht

Oppervlaktes en inhoud
Gebruiksoppervlak wonen 308
Bruto inhoud m3 1726
Oppervlakte gebouwgeb. buitenr. 2761
Perceel oppervlakte 196999

Indeling
Aantal kamers 4
Aantal slaapkamers 3

Woning
Type woonhuis Vrijstaand
Soort woonhuis Woonboerderij
Bouwjaar 2012

De specialist in aan- en verkoop van woonboerderijen in landelijk gebied

Onze gecertificeerde makelaars en vastgoedadviseurs zijn gespecialiseerd in onroerend goed in met name het buitengebied en helpen u graag uw droom te verwezenlijken. De makelaar van Landeijk Wonen spreekt uw taal en dat is fijn want dan begrijpt u elkaar. Het aan en verkopen van een woonboerderij is toch een van de grootste beslissingen in uw leven.