Woonboerderij te koop in Limburg - Rijksweg 28, Bergen L

Woonboerderij in Limburg
€ 925.000
3270 m² perceel
330 m² wonen
6 kamers

Woonboerderij in Limburg!

OPEN HUIS ZATERDAG 28 MAART A.S. U bent van harte welkom!

Altijd op zoek geweest naar een locatie die ruim, degelijk en riant is opgezet? Kom dan eens kijken naar deze fraaie, authentieke woonboerderij met royale tuin, enkele functionele bijgebouwen en een groot verhard erf. Ondanks de ligging aan de openbare N-weg, ook nog een ruime “achterom” via de Parallelweg met grote automatische poort. Kortom een ideale plek voor diegene die hobby of werk wil combineren met veel leef- en woongenot. Dankzij de uitstekende bedrijfsfaciliteiten, zoals ruime bedrijfsgebouwen, een bedrijfskantine en een goede bereikbaarheid, is dit object ook zeer geschikt voor ondernemers of zelfstandigen die graag op dezelfde plek willen wonen en werken.
Daarnaast is het energieverbruik bijzonder laag door de aanwezigheid van zonnepanelen, een grote houtpelletkachel (met 10 ton voorraad) en goede isolatie (dak en vloer). Dit maakt het geheel niet alleen comfortabel, maar ook duurzaam en kostenbesparend.

Kom binnen……
Via zowel de voordeur als achterom is de woning toegankelijk. De hal geeft toegang tot de woonkeuken met een fraaie keukenopstelling, voorzien van een Boretti fornuis met 2 ovens, afzuigkap verwerkt in de schouw, vaatwasser en dubbele wasbak. Heerlijk genieten aan de grote eettafel met uw gezin, familie of vrienden. Vanuit de keuken komt u in de woonkamer met de grote houtkachel, welke zorgt voor een heerlijke warmte op de koude dagen. Zowel vanuit de woonkeuken als de woonkamer is er toegang naar de serre. De serre is een mooie extra leefruimte van waaruit u optimaal kunt genieten van uw eigen buitenruimte. De kozijnen zijn van kunststof en geheel voorzien van screens. Vanuit de keuken gaat u via de achterbouw met witgoedaansluitingen naar de badkamer op de begane grond. Deze is voorzien van een douche, wastafel en toilet. In de achterbouw zijn de witgoedaansluitingen en een royale bergruimte. De slaapkamer op de begane grond is toegankelijk vanuit de achterbouw. Het woongedeelte is voorzien van vloerverwarming.
Het voormalige achterhuis is gerenoveerd met goede materialen en in gebruik als opslagruimte. Deze ruimte is geschikt voor diverse doeleinden, mede door de dubbele openslaande schuurdeuren. In deze ruimte staat de grote pelletkachel en andere technische installaties wat zorgt voor een bijzonder efficiënt energiegebruik. Via de vaste trap is de ruimte zolder boven het achterhuis toegankelijk.

Kom verder….
Via de trapopgang in de woonkeuken komt u op de eerste verdieping. De overloop biedt toegang tot toegang tot 3 slaapkamers en de badkamer. De badkamer is voorzien een ligbad, douche, wastafel en toilet. Op de slaapkamers ligt een laminaatvloer en 1 slaapkamer is voorzien van een wastafel. Daarnaast zijn 2 slaapkamers voorzien van een Velux-dakraam.
De ruimte boven het achterhuis is opgedeeld in 2 delen en fraai afgewerkt. De originele balken zijn nog zichtbaar. Ook deze ruimtes zijn geschikt voor diverse doeleinden.

De tuin:
Het gehele perceel is omheind met hekwerk, poorten en hagen. Er is een doelmatig erfverharding en de tuin is aangelegd met gazon, borders, terrassen en een tuinhuisje.

Bijgebouwen:
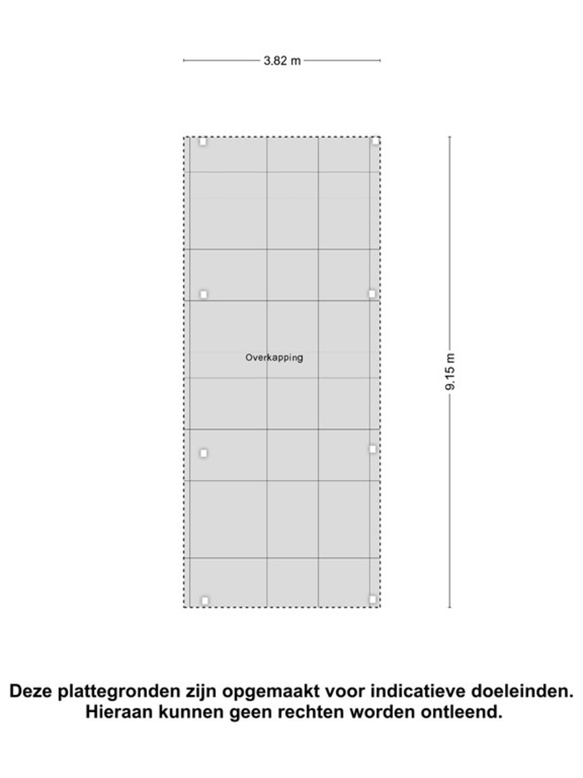
Op het perceel staan een drietal bijgebouwen. Het bijgebouw direct achter de woonboerderij is geïsoleerd en voorzien van een elektrisch bedienbare deur. Op het dak liggen zonnepanelen. Verder is het beregeningsysteem voor de tuin aanwezig in dit gebouw. Deze ruimte zou verbouwd kunnen worden naar een mantelzorgwoning. Over deze mogelijkheid dient u zich door de gemeente te laten informeren.
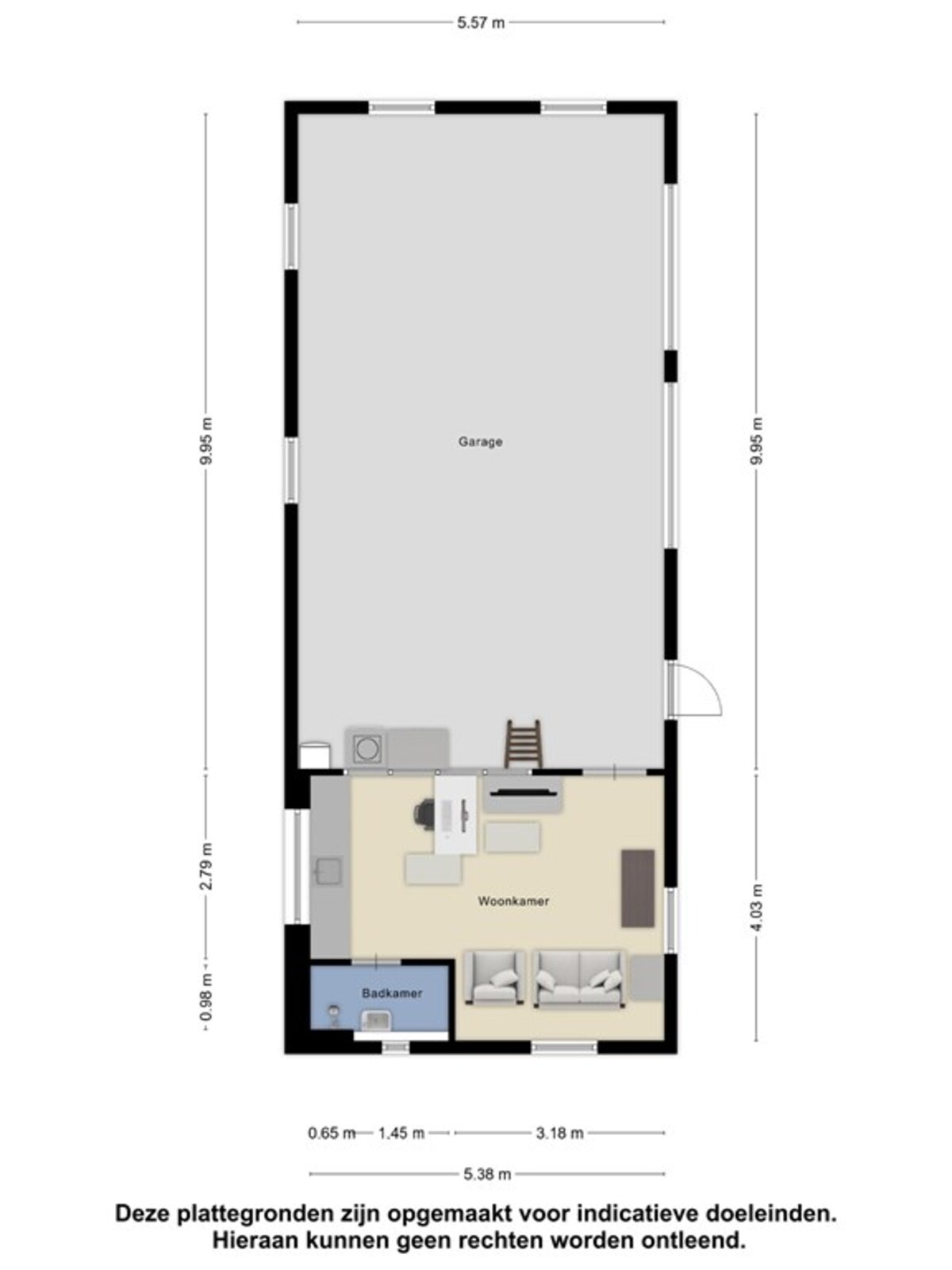
De garage met kanteldeur is voorzien van een smeerput en hefbrug. Verder is er water en elektra aanwezig. Deze garage is niet geïsoleerd.
De ruime loods met eigen c.v.-installatie heeft een keuken/kantine met keukenopstelling, badkamer, elektrisch bedienbare deuren en vloerverwarming.


Algemeen:
- Inhoud van de woning 1900 m², woonoppervlakte 330 m²;
- Voorzien van rolluiken en buitenzonwering;
- Zonnepanelen
- Voorzien van dak- en vloerisolatie;
- Het woongedeelte is op de begane grond voorzien van vloerverwarming;
- Houtpelletkachel (10 ton voorraad) voor extra lage energiekosten;

Op het geheel rust de volgende bestemming;
Buitengebied 2018, 1ste herziening
Bestemmingsplan Gemeente Bergen (L.)
Vastgesteld 13-12-2022 geheel in werking
Bestemmingsvlakken; Wonen en Waarde-Archeologie 3
Gebiedsaanduiding; overige zone – 1ste herziening

Daarmee laat het bestemmingsplan toe om er prive 24/7 te kunnen wonen, met een beroep- of bedrijf aan huis, zoals opgenomen in de bijlage van het bestemmingplan. Een ideale locatie voor diegene die privé en werk wil combineren.

Omgeving:
Bergen is een dorp het Noorden van Limburg. De woning is gelegen op korte afstand van diverse voorzieningen zoals winkels, basisschool, sporthal en het natuurgebied Nationaal Park "De Maasduinen". Ook het Leukermeer in Well ligt vlakbij, evenals uitvalswegen naar Duitsland. Steden zoals Nijmegen en Venlo zijn in ongeveer 30 minuten met de auto te bereiken via de A73 of de rijksweg N271.

Laat u ten alle tijden bijstaan door een professioneel bureau ruimtelijke ordening om uw wensen te toetsen aan het huidige bestemmingsplan. Alle optie die worden benoemd zijn dan ook suggestief.

Kenmerken


Overdracht
Prijscode Vraagprijs
Vraagprijs € 925.000,00
Prijstype k.k.
Datum opdracht 2025-11-14
Aanvaarding In overleg
Status Beschikbaar

Oppervlaktes en inhoud
Gebruiksoppervlak wonen 330
Bruto inhoud m3 1900
Oppervlakte externe bergruimten 145
Oppervlakte overige inp. ruimten 180
Perceel oppervlakte 3270

Bouw
Type dak Mansardedak
Dakbedekking Pannen

Indeling
Aantal kamers 6
Aantal slaapkamers 4

Locatie
Ligging Aan drukke weg
Buiten bebouwde kom
Dichtbij school
In bosrijke omgeving

Energie verbruik
Energie klasse C

Woning
Type woonhuis Vrijstaand
Soort woonhuis Woonboerderij
Bouwjaar 1928

De specialist in aan- en verkoop van woonboerderijen in landelijk gebied

Onze gecertificeerde makelaars en vastgoedadviseurs zijn gespecialiseerd in onroerend goed in met name het buitengebied en helpen u graag uw droom te verwezenlijken. De makelaar van Landeijk Wonen spreekt uw taal en dat is fijn want dan begrijpt u elkaar. Het aan en verkopen van een woonboerderij is toch een van de grootste beslissingen in uw leven.