Woonboerderij te koop in Overijssel - Tunnelweg 3, Haarle
Woonboerderij in Overijssel!
LANDELIJK IN BUITENGEBIED VAN HAARLE CHARMANTE RIETGEDEKTE WOONBOERDERIJ
Op korte afstand van het Nationaal Park de Sallandse Heuvelrug prachtig gelegen vrijstaande woonboerderij met een schuur op een royaal perceel van ca. 7.250 m². De woonboerderij heeft een woonbestemming. Ideaal voor paardenliefhebber en/of andere hobbymatige activiteiten.
KENMERKEN:
- Prachtige ligging en riant uitzicht over landerijen
- Woonboerderij met charmante/sfeervolle uitstraling
- Ruime schuur
- Mogelijkheid bouw extra schuur van 140 m²
- Royaal perceel
- Ideaal voor een paardenliefhebber met uitrijmogelijkheden
- Op korte afstand van Nationaal Park de Sallandse Heuvelrug
- Nabij verbindingswegen
Nieuwsgierig geworden, we ontvangen u graag voor een bezichtiging!
Woning
Deze royale vrijstaande woonboerderij is gebouwd in 1915. Het geheel is opgetrokken uit steensmetselwerk met voorzetwanden en gedekt met riet. De woning is deels voorzien van vloerisolatie en dubbele beglazing. De verwarming geschiedt middels centrale verwarming en vloerverwarming in de woonkamer en keuken. De kap is beschoten. De begane grondvloer is van beton en de verdiepingsvloer is van hout. Het object is aangesloten op de nutsvoorzieningen gas, water, elektra en glasvezel en rioolaansluiting. De inhoud van de woning bedraagt 718 m³ en de indeling is als volgt:
Begane grond:
Hal / entree, trapopgang, meterkast, toilet, keuken met inbouwapparatuur, kelder, woonkamer, twee slaapkamers, een badkamer met ligbad en douche en achterhuis/berging.
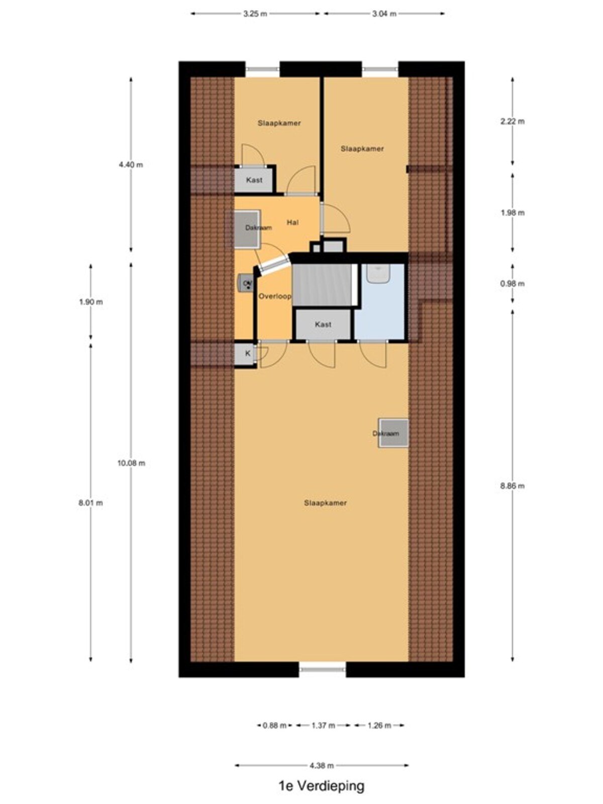
Eerste verdieping:
overloop met twee slaapkamers met vaste kastruimte, royale zolder met mogelijkheid van slaapkamer(s), een toilet / wastafel, berging met cv ruimte.
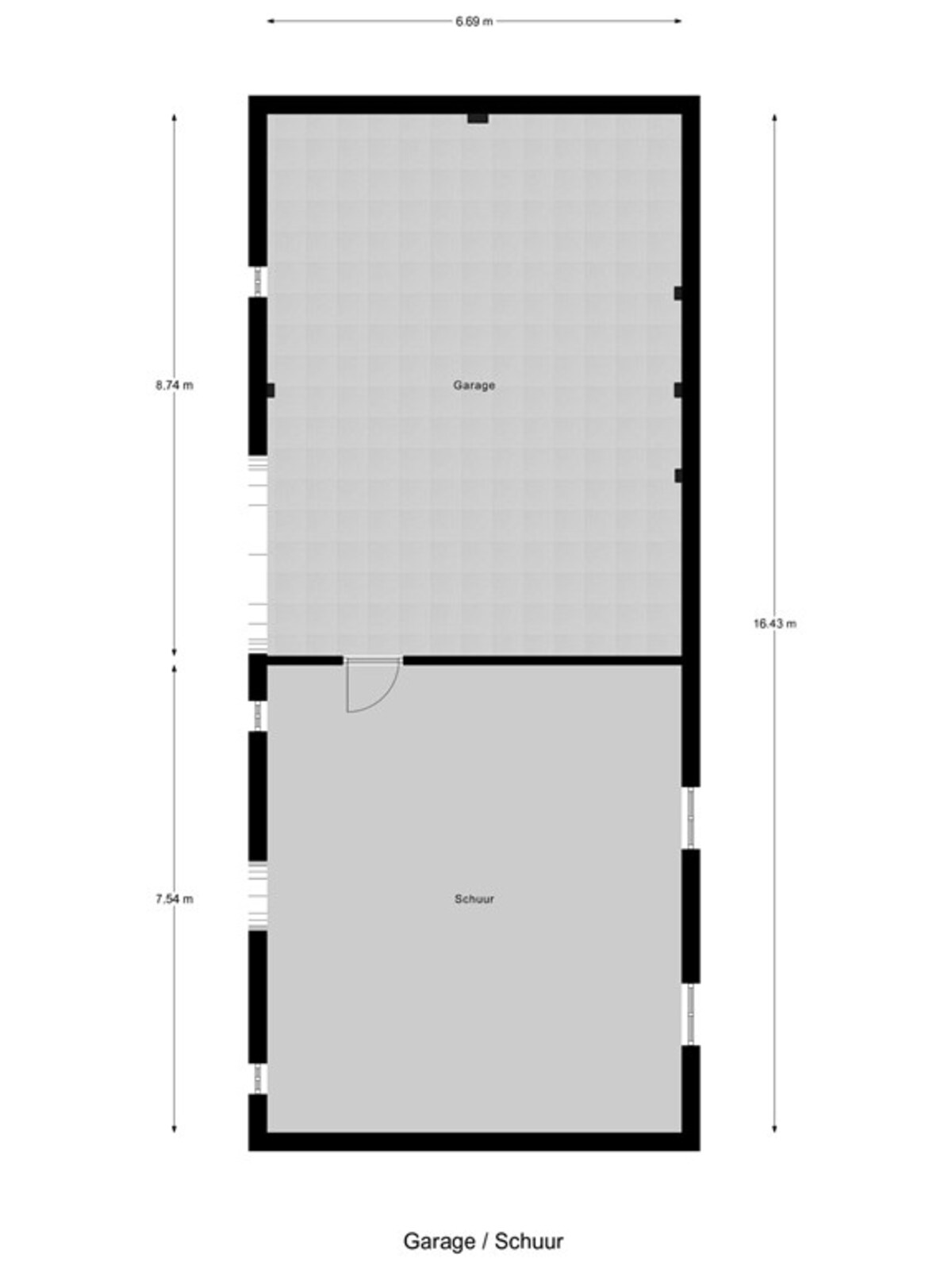
Garage/schuur
Deze schuur is in 2000 gebouwd / herbouwd en heeft een afmeting van ca. 6,69 m x 16,43 m. Het geheel is opgetrokken uit halfsteensmetselwerk en grotendeels spouwmetselwerk met een houten spantconstructie en is gedekt met pannen. De kap is geïsoleerd met Unidekplaten. De vloer is verhard met beton en klinkers.
Bestemming
Volgens het bestemmingsplan Tunnelweg 3 van de gemeente Hellendoorn is de bestemming Wonen met Archeologische verwachtingswaarde. Van het bestemmingsplan is de uitsnede van de kaart als bijlage bijgevoegd aan de brochure (bron www.omgevinsgwet.overheid.nl). Voor nadere informatie omtrent bestemming en bouwvoorschriften kan men zich wenden tot de Gemeente Hellendoorn. Er is in het verleden mee gedaan met de Rood voor-rood-regeling waardoor er een erfinrichtingsplan van toepassing is welke mee overgaat op koper.
Voor meer informatie, vraag onze brochure op.
Kenmerken
|
Overdracht
|
|
| Prijscode | Vraagprijs |
| Vraagprijs | € 650.000,00 |
| Prijstype | k.k. |
| Datum opdracht | 2026-04-16 |
| Aanvaarding | In overleg |
| Status | Verkocht onder voorbehoud |
|
Oppervlaktes en inhoud
|
|
| Gebruiksoppervlak wonen | 165 |
| Bruto inhoud m3 | 718 |
| Oppervlakte externe bergruimten | 51 |
| Oppervlakte overige inp. ruimten | 52 |
| Perceel oppervlakte | 7250 |
|
Indeling
|
|
| Aantal kamers | 5 |
| Aantal slaapkamers | 4 |
|
Locatie
|
|
| Ligging |
Buiten bebouwde kom In bosrijke omgeving |
|
Energie verbruik
|
|
| Energie klasse | E |
|
Woning
|
|
| Type woonhuis | Vrijstaand |
| Soort woonhuis | Woonboerderij |
| Bouwjaar | 1915 |