Woonboerderij te koop in Noord-Brabant - Hanekampseweg 7, Landhorst
Woonboerderij in Noord-Brabant!
OPEN HUIS ZATERDAG 28 MAART A.S. U bent van harte welkom!
Woonboerderij met ongekende mogelijkheden in het buitengebied van Landhorst!
Bent u op zoek naar rust, ruimte en een woonlocatie met tal van gebruiksmogelijkheden?
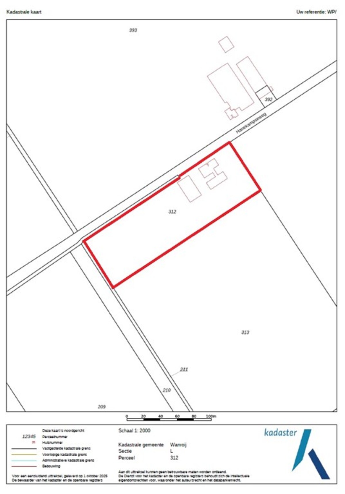
In het buitengebied van Landhorst treft u deze charmante woonboerderij uit 1930 aan op een royaal perceel van maar liefst 13.940 m². Een unieke kans voor wie landelijk wil wonen, werken aan huis, ruimte zoekt voor een agrarisch aanverwant beroep of paardenhouderij.
Deze karakteristieke woonboerderij met mansardekap biedt volop potentie om geheel naar eigen wens en stijl te moderniseren. Dankzij de omvang en indeling van het object zijn er legio mogelijkheden te realiseren, zoals een kantoor aan huis, praktijkruimte, mantelzorgwoning of zelfs een kleinschalige Bed & Breakfast. Uiteraard is dit object door de aanwezigheid van de stal en weiland uitermate geschikt voor het houden van paarden.
De aanwezigheid van bijgebouwen met meerdere kantoor-/hobbyruimtes en weiland maakt deze locatie uitermate geschikt voor zowel particulier als professioneel gebruik.
Indeling van de woning
Begane grond
Via de entree betreedt u een ruime, betegelde hal die direct toegang geeft tot het woongedeelte en een kantoorruimte. De centrale gang biedt doorgang naar de woonkamer, keuken, badkamer, toilet én wasruimte met aansluitingen voor witgoed. De keuken is voorzien van inbouwkasten, een aanrechtblok en biedt via de gang toegang tot de opkamer (thans in gebruik als slaapkamer), de kelder en de trap naar de eerste verdieping.
Achterin de woning bevindt zich het voormalige bedrijfsgedeelte, waar u onder andere een ruime garage en een hobbyruimte (momenteel ingericht als biljartkamer) aantreft.
Aangrenzend vindt u twee royale kantoorruimtes, voorzien van een fraaie gietvloer, een berging en een grote volledig geïsoleerde schuur/garage met vide. Deze ruimte is voorzien van een gevlinderde betonvloer en een vaste trap naar de grote zolder – ideaal voor opslag of archief. De schuur is middels 2 elektrische segmentdeuren en een loopdeur toegankelijk.
Het schuurgedeelte is uitermate geschikt voor een grote werkplaats voor o.a. landbouwvoertuigen of werktuigen.
Eerste verdieping
De bovenverdieping beschikt over vier ruime slaapkamers, een berging en is volledig afgewerkt met zeil. Via een luik is de bergzolder bereikbaar, voor extra opslag.
Rondom de woning
Het perceel is deels verhard met betonklinkers, betonplaten en asfalt. De achtertuin is via de bijkeuken bereikbaar en is fraai aangelegd met hagen, volwassen groen en zitmogelijkheden. Dankzij de natuurlijke erfafscheidingen geniet u hier van optimale privacy – een ideale plek voor ontspanning, recreatie of tuinfeesten.
Bijgebouwen
Op het terrein bevinden zich twee grote bijgebouwen die bijdragen aan de veelzijdigheid van dit object:
1. Stal/Schuur - 2005
- Circa 12 x 28 meter
- Wanden van betonpanelen met steenstrips en deels damwandgevels
- Onderkelderd (1.000 m³), deels met spouwmuren
- Voorzien van roldeuren aan voor- en achterzijde
- Vleesveestal met roostervloer en voergang.
- Deels open front (ca. 4 x 28 m)
2. Garage/Kantoorruimte (bereikbaar via het woonhuis) - 1992
- Circa 24 x 8 meter
- Traditioneel gemetseld met stalen spanten
- Gevlinderde vloer in garage, geïsoleerd dak
- Gietvloer in kantoorruimtes
- 2 roldeuren, diverse kantoorruimtes en berging
- Vaste trap naar ruime zolderverdieping
De aanwezige bijgebouwen bieden uitstekende mogelijkheden voor het uitoefenen van een beroep aan huis, werkplaats, atelier, opslag of kantoorfunctie.
Bestemming en mogelijkheden
De woonboerderij valt onder het "Veegplan Buitengebied Sint Anthonis 2013" (vastgesteld op 04-02-2015) met een agrarische bestemming.
Binnen deze bestemming zijn verschillende gebruiksmogelijkheden bespreekbaar, waaronder:
• Kantoor aan huis
• Agrarisch aanverwant beroep
• Paardenhouderij
• Mantelzorg
• Wonen met een groot gezin
• Bed & Breakfast
• Kleinschalige bedrijfsmatige activiteiten
Wij adviseren u om voor specifieke plannen het Omgevingsloket of de gemeente te raadplegen.
Kenmerken op een rij
• Gelegen in het buitengebied van Landhorst
• Perceel van 13.940 m² (waarvan ruim 1 ha. weiland)
• 28 zonnepanelen aanwezig – 2018/2020
• Kunststof kozijnen met dubbele beglazing
• Muurisolatie
• Diverse bijgebouwen met kantoor-/werkruimte
Ligging
Landhorst is een rustig dorp aan de rand van het natuurgebied ‘De Staatsbossen’ en kenmerkt zich door een groene, landelijke omgeving. Er is een actief verenigingsleven en voorzieningen op het gebied van sport en recreatie zoals voetbalvelden, tennisbanen en het kindvriendelijke speelbos ‘De Groene Poort’.
De ligging is gunstig ten opzichte van uitvalswegen:
• A73 / A77 op circa 15 autominuten
• Nijmegen, Venlo en Venray bereikbaar binnen 30-35 minuten
• Winkels en voorzieningen in Mill, Wanroij en Sint Anthonis (binnen 10 km)
• NS-station in Boxmeer of Vierlingsbeek op ca. 20 autominuten
Maak een afspraak
Bent u benieuwd naar de mogelijkheden die deze woonboerderij u kan bieden? Neem dan gerust contact met ons op voor een vrijblijvende bezichtiging. Deze locatie moet u met eigen ogen zien om de ruimte en potentie écht te ervaren.
Deze informatie is door ons met de nodige zorgvuldigheid samengesteld. Onzerzijds wordt echter geen enkele aansprakelijkheid aanvaard voor enige onvolledigheid, onjuistheid of anderszins, dan wel de gevolgen daarvan. Koper heeft een onderzoeksplicht.
Kenmerken
|
Overdracht
|
|
| Prijscode | Vraagprijs |
| Vraagprijs | € 995.000,00 |
| Prijstype | k.k. |
| Datum opdracht | 2025-12-22 |
| Aanvaarding | In overleg |
| Status | Beschikbaar |
|
Oppervlaktes en inhoud
|
|
| Gebruiksoppervlak wonen | 380 |
| Bruto inhoud m3 | 2650 |
| Oppervlakte externe bergruimten | 340 |
| Oppervlakte overige inp. ruimten | 330 |
| Perceel oppervlakte | 13940 |
|
Indeling
|
|
| Aantal kamers | 8 |
| Aantal slaapkamers | 5 |
|
Locatie
|
|
| Ligging |
Buiten bebouwde kom In bosrijke omgeving |
|
Woning
|
|
| Type woonhuis | Vrijstaand |
| Soort woonhuis | Woonboerderij |
| Bouwjaar | 1930 |