Te koop in Gelderland - Harensestraat 8a, Ommeren

Gelderland
€ 2.000.000
38810 m² perceel
239 m² wonen
7 kamers

Gelderland!

Te koop

Recreatie- en Hengelsportboerderij met horecagelegenheid in het hart van de Betuwe. Unieke kans voor visliefhebbers en ondernemers! Naast comfortabele woonruimte ook uitstekende mogelijkheden voor commerciële activiteiten.



De locatie

Ommeren is een aantrekkelijk dorp voor rustzoekers en liefhebbers van het buitenleven. Het dorp combineert landelijke charme met essentiële voorzieningen, zoals een lokale supermarkt, basisschool en medische zorg op korte afstand. Fiets- en wandelroutes doorkruisen het groene buitengebied, ideaal voor recreatie en ontspanning. Sportverenigingen en het dorpshuis bieden ruimte voor sociale activiteiten en verbinding binnen de gemeenschap.

Ommeren is centraal gelegen in de Betuwe en uitstekend bereikbaar via de A15 en N320. Hierdoor vormt het dorp een toegankelijke uitvalsbasis.



Midden in dit landschap ligt Forellenvijver de Kamphoeve – een unieke recreatieve trekpleister. De Kamphoeve biedt visliefhebbers een ontspannen dag in de natuur met goed onderhouden vijvers en ruime visstekken. Zowel beginners als ervaren vissers zijn welkom. De gastvrije sfeer, horecavoorzieningen en landelijke ligging maken De Kamphoeve tot een ideale bestemming voor een actieve én ontspannen buitenervaring.



De bedrijfswoning

De woning is gebouwd in 1997 en beschikt over een energielabel C. Met een woonoppervlakte van 240 m² en een inhoud van 510 m3 (inclusief de bedrijfsruimte 1.100 m3) biedt het huis voldoende ruimte voor een gezin of voor het combineren van wonen en werken. Het object is voorzien van glasvezelaansluiting.



De woning is traditioneel gebouwd, is opgetrokken uit geïsoleerde spouwmuren en gedekt met dakpannen. Het dak is beschoten met geïsoleerde dakplaten. De kozijnen zijn van hardhout en voorzien van dubbel glas. Er is vloerverwarming in alle ruimten op de begane grond en in de badkamer op de verdieping aanwezig.



De indeling van de woning

Op de begane grond treft u de entree met toegang tot de woon-/ eetkamer. De woonkamer is voorzien van een houten vloer, een erker en openslaande deuren naar het terras. Er is mogelijkheid voor het plaatsen van een houtkachel. De huidige spekstenen kachel biedt men ter overname aan. Aangrenzend treft u de keuken en de bijkeuken. De bijkeuken, voorzien van CV en aansluitpunten voor wasmachine en droger, heeft een achter entree en directe toegang tot de garage.



Via een vaste trap komt u op de verdieping met overloop en vier slaapkamers (waarvan één met dakkapel, één met een walk in closet en alle met airco). De badkamer heeft een ligbad, douche, toilet en badkamermeubel. De zolderverdieping is met een vlizotrap bereikbaar.



Op de garage zijn middels een separate opgang nog twee slaapkamers gerealiseerd.



De bedrijfsopstallen

Het restaurant annex vergaderlocatie is in 1996 gebouwd. Het is opgetrokken uit stalen spanten, spouwmetselwerk met een vrije overspanning, kunststof deuren - kozijnen en geïsoleerde dakpanplaten. Het restaurant is uitgerust met kantine, bar, keukentje, vaste koelcel en dubbele toiletruimte. Verder zijn er overkappingen en terras aanwezig, waardoor de beschikbare ruimte optimaal is benut. Er is een contract voor tankgas (propaan). Het hele object is uitgerust met een camera- en alarmsysteem.



Op het terrein is in 2010 een werktuigenloods/ opslagruimte gebouwd van circa 123 m2, opgetrokken uit damwandprofielplaten. De loods is voorzien van elektra, is geheel gesloten en uitgerust met grote schuifdeuren.



De eerste zes visvijvers zijn aangelegd omstreeks 1990. De achterste zijn in 2017 en 2024 gerealiseerd.



Commerciële mogelijkheden: De Kamphoeve

Op dit adres is momenteel forellenvisvijver De Kamphoeve gevestigd, een populaire bestemming voor sportvissers en recreanten. De Kamphoeve beschikt over meerdere forellenvijvers en biedt een ongeëvenaarde beleving voor vijververhuur maar ook verzorgde bruiloften/ jubilea in een sfeervolle, natuurlijke setting, teambuildingactiviteiten met visclinics en horeca-arrangementen, barbecues en kinderfeestjes.



Dit terrein is bij uitstek geschikt voor het voortzetten van de huidige commerciële activiteiten voor sport- en recreatievissers, die op zoek zijn naar een goed beheerd visparadijs met variatie in vissoorten (algemeen vissen op zalm, forel en meerval en specialistische vijvers voor steur, karpers en snoeken).



Alle faciliteiten voor een directe exploitatie zijn op het terrein aanwezig: van professionele horecakeuken tot kantine met panoramisch uitzicht over de vijvers, van sanitair gebouw nabij de viszones tot loods/ schoonmaakplaats, schuilhokjes en een ruim parkeerterrein.



Het bedrijf biedt verder mogelijkheden voor PGB dagbesteding, vrijwilligerswerk gemeente en het is een erkend leerbedrijf tot niveau 4.



De bestaande infrastructuur en de naamsbekendheid van De Kamphoeve bieden een solide basis voor ondernemers. Voor meer informatie over de huidige commerciële activiteiten op dit adres kunt u de website van De Kamphoeve bezoeken: www.dekamphoeve.nl.



Visbeheer en dierwelzijn

Een goed visbestand is essentieel voor duurzaamheid én klanttevredenheid. Daarom zijn er uitgebreide voorzieningen getroffen voor het houden, beheren en gezond houden van vissen:

- Vijverdiepte en zuurstofbeheer: diepe zones, beluchtingssystemen en natuurlijke beplanting voor optimale zuurstofbalans.

- Voederbeheer: visvriendelijk voeren afgestemd op soort, jaargetijde en groeifase.

- Monitoring: regelmatige controle op waterkwaliteit, pH-waarde en gezondheid van het visbestand.

- Wintervoorziening: overwinteringsplekken en ijsvrije zones.

- Vissenvervanging en aanvulling via erkende kwekers met visziektevrije certificering.

Door deze aanpak is het visbestand in topconditie, wat zorgt voor actieve, gezonde vissen en een optimale vangstbeleving.



Het perceel

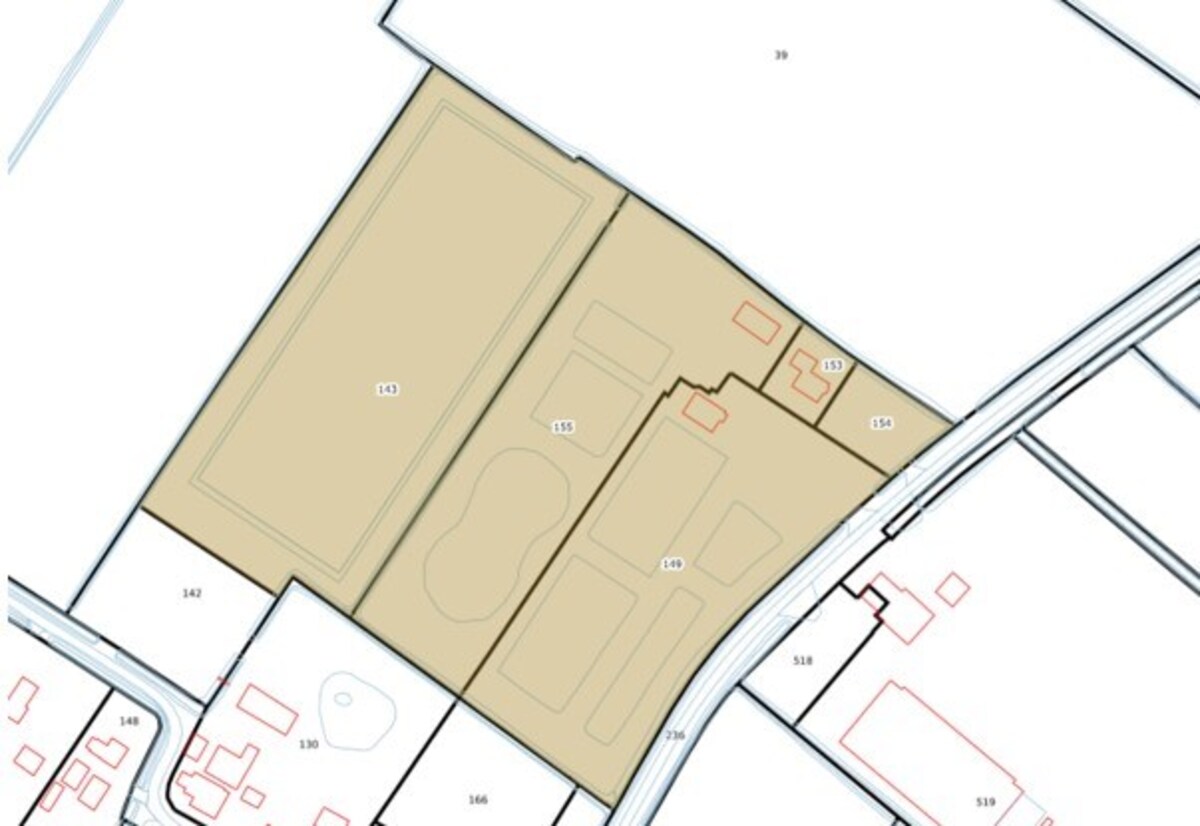
Het te verkopen perceel is kadastraal als volgt bekend: gemeente Ommeren, sectie D, nummers 143, 149, 153, 154 en 155. Het totale binnen- en buitenterrein bedraagt 03.88.10 ha. De paden om de vijvers zijn grotendeels verhard, dus ook voor minder validen goed begaanbaar.



De bodemsoort staat bekend als kalkloze poldervaaggronden; zware klei, profielverloop 3/ 4 (Rn44C/ Rn47C) en zavel en lichte klei, profielverloop 3/ 4 (Rn67C).



Vergunning en bestemming

U bent direct startklaar want alle vergunningen en faciliteiten zijn aanwezig. Begin 2025 zijn de grenzen voor schenktijden, muziek, verlichting en geluidsnormen zelfs verruimd.

Het bestemmingsplan ‘Buitengebied, tweede herziening’ is vastgesteld op 27 maart 2012 door de Gemeente Buren met bestemming ‘Sport’. De functieaanduiding is ‘Specifieke vorm van sport - visserij’ voor het beoefenen van de vissport. Een (ondergeschikte) horecavoorziening is toegestaan.



Het object ligt binnen de grens van een door de provincie Gelderland aangewezen weidevogelgebied. Ook heeft de gemeente Buren haar eigen Landschapsontwikkelingsplan (LOP). Een onderdeel hiervan betreft het ‘Werkboek Lienden’. Dit perceel valt in deelgebied ‘Het Ommerense veld’. Hierin worden de openheid, weidsheid en het ontbreken van opgaande beplanting gezien als de typerende kenmerken van dit komgebied. Dit past natuurlijk ook bij de kenmerken van een weidevogelgebied, gezien weidevogels van relatief vochtige omstandigheden, een kruidendivers grasland en vooral openheid en overzicht houden. Ontwikkelingen mogen hier in principe geen negatieve invloeden op hebben.

U heeft het goed gelezen: niet alleen de visliefhebber komt hier aan zijn trekken. Denk bijvoorbeeld ook aan het opzetten van een nieuw bedrijf door:

- Recreatieondernemers die willen investeren in de vis- en evenementenbranche of verblijfsaccommodaties in een recreatief populaire streek.

- Agrariërs die op zoek zijn naar een rendabele nevenactiviteit.

- Horecaondernemers die de unieke locatie inzetten voor vis- en natuurbeleving.



Kortom: een uniek recreatieobject dat eigen idee, ontspanning en ondernemerschap samenbrengt!

Kenmerken


Overdracht
Prijscode Vraagprijs
Vraagprijs € 2.000.000,00
Prijstype k.k.
Datum opdracht 2025-12-22
Aanvaarding In overleg
Status Beschikbaar

Oppervlaktes en inhoud
Gebruiksoppervlak wonen 239
Bruto inhoud m3 1100
Oppervlakte externe bergruimten 134
Oppervlakte overige inp. ruimten 56
Oppervlakte gebouwgeb. buitenr. 41
Perceel oppervlakte 38810

Indeling
Aantal kamers 7
Aantal slaapkamers 6

Locatie
Ligging Buiten bebouwde kom

Woning
Type woonhuis Vrijstaand
Bouwjaar 1997